食はいのちをテーマに、茨城・千葉に安心・安全な食品をお届けする生協です。
常総生協の組合員向けに毎週発行される会報をご覧いただけます。
いのちを育む食べものだから
しっかりした状態でお届けしたい
配送設備についての提案

「4温度帯届け」(※)の導入など、「いのちある食べもの」を、可能な限り最適な状態でお届けすることをさきがけで行い、一定の組合員評価も得ることができました。
今回は、現状の配送業務上の課題と改善したい配送設備関係についてご報告、提案致します。
(※)4温度帯届け
冷蔵、冷凍、農産、常温品のそれぞれに適合した温度帯で組合員に届けること。10年以上前から実施。
常総生協の品質管理水準と業務改善と施設設計のポイント。
この間2週間に渡って、配送センターと本部施設の新設についてご説明して参りました。
今回は、【納品~保管~組合員宅へのお届け】までの品質管理業務についての現状と課題についてご報告致します。
商品納品時は、数量と品質を確認します(入荷検収)。
納品後の商品は、庫内数か所に設置されている温度センサーで常に温度モニタリングされており、セットセンターが稼働していない休日、夜間であっても万が一温度異常があった場合は複数の担当者の携帯に警報のメールが自動的に届くように設定されており、必ず対応できる体制をとっています。
セット(箱詰め)時の室温は、夏秋(6月~10月)は8℃、冬春(11月~5月)は10℃に設定します(ドアの開閉時に若干の温度上昇があるため、夏場は低い温度設定にします)。
また、棚に並べる間も常に保冷剤で冷却し、品質を保ちます。冷蔵の練り物などは特に冷却には注意を払うカテゴリーに分けて管理します。
ここからが供給担当の出番です。トラック内のスペースは限られていますので、いかにして無駄なスペース無く積み込み、且つ効率的動線を確保できるかがポイントです(どこに何を置くかはマニュアル化されています)。
ゼットボックス
朝の時点で冷凍品をまとめて運搬する大きな箱、通称「ゼットボックス」(※1)にドライアイスを投入します。午後に配達する分の箱には少し多めに入れます。ドライアイスは細かい隙間まで入り込んで冷やすことができる「ペレット」タイプと、時間的に耐久力がある約5センチ角の「角ドライアイス」の2種類(※2)を使います。
牛乳はトラック輸送中は専用の蓄冷剤で冷却します。温度変化に弱い「サツラク低温殺菌牛乳」導入時、製造元サツラク農協からも太鼓判を頂いた温度管理レベルです(現状、本州の生協でサツラク低温殺菌牛乳を扱えるのは常総生協のみ)。
(※1)ゼットボックス
約20件分の冷凍商品をまとめて輸送するための保冷箱です。冷凍品は密度が高いほどお互いを冷やし合うので保冷効果は高い輸送方法です。
(※2)ドライアイス
二酸化炭素を個体にしたもの(-79℃)。小さな「ペレット」タイプはゼットボックスに投入し隅々まで冷却する用途に、「角ドライアイス」は留守宅へ荷置きする場合に使用し、指定の帰宅時間に合わせて個数をコントロールします。
在宅の組合員さんには手渡しできるのですが、地域にもよりますが、現在約4割がお留守班です。
左:冷蔵用の蓄冷剤、右:冷凍用の蓄冷剤
留守宅へ荷置きは担当は非常に注意を払う品質管理のひとつです。温度管理はもちろん、猫やカラス対策、荷置き後の太陽の動きを考えてセットします。事前の実験(※3)からデータ分析とドライアイスの残っている様子をチェックしていますので、外気温に応じたドライアイス適正数量と蓄冷剤(※4)を投入し、真夏でも凍結状態を保つ業務水準を維持しています。(もし不都合があった場合は是非生協までお知らせください。対応致します)。
(※3)事前の温度実験
命ある食べものを最高の状態でお届けできるように、最適な方法を探します。冷凍の箱を開けると一番上にちらしで「フタ」をされていることがあると思いますが、これも実験の中で発見した「ドライアイスが最後まで一番残っていた方法」でした。
(※4)蓄冷剤
常総生協で使う蓄冷剤は、0℃の能力を持つ冷蔵用(800g)と、-11℃の能力を持つ冷凍用(500g)の2種類です。全国でも早い段階で冷凍用蓄冷剤を導入し、ドライアイスの総量を減らすことに成功しました(コストダウン)。
現状の商品仕分けや保管業務について、改善すべき点がまだ少なからずありますが、部分的投資では割高になることからなかなか着手できなかった箇所もありました。
今回の移転、新設を契機に、常総生協に集う生産者が作ったいのちある食べものを、可能な限り最高な状態で組合員に届けられる設備の改善も行いたいと考えています。
既存の施設をそのままコピーするのではなく、現状抱える課題を解決できる施設にしたいと思います。現段階での方針としては以下の通りです。
・現在、物流上の課題となっている以下の部分について改善したいと思います。
●霜取り時の温度変化防止
・冷凍機が「霜取り」時間に入ると、その間若干温度が上昇します。
・2つの冷凍機を設置し、片方が霜取り中の場合でもフォローし合う設備を計画します。
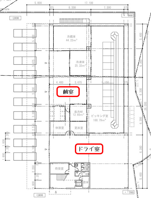
●外気流入を防止するための「前室」
・特に夏場、ドアを開けた時に冷気が漏れ、庫内温度が上昇してしまいます。空調管理された「前室」を設けることで防止でき、節電にもなります。
●蓄冷剤専用倉庫
・「蓄冷剤専用冷凍庫」と「食品用冷凍庫」を分けることで、それぞれを最適の温度帯で保管できます。
●野菜保管庫
・ほとんどの野菜は温度変化を嫌います。
・野菜に最適な「定温」の保管庫を設計します。
●ドライの常温温度帯セット
・現在、冷蔵品や冷凍品と同じセットラインを使用しているため品質劣化の原因となります。
・25度前後の「定温」ラインを設計します。
●全天候型の積み込みスペース
・庇を大きくし、雨の日でも積み込み時に商品が濡れないようにします。
・いつでも買える500アイテム程度の常時注文品(ドライ品)の設定を検討中です。
・東側が住宅街のため、入出庫時の事故や騒音を回避できる設計にします。
現段階では素案です。ぜひ組合員皆さんのご意見をお寄せ下さい。
・外気が直接冷蔵庫/冷凍庫に流入しない様に「前室」を設ける設計に。
・「蓄冷剤専用冷凍庫」と「食品用冷凍庫」を分けることで、それぞれを最適の温度帯で保管できます。
・定温管理された「ドライ品室」を設けることで、ドライ品(乾物)を最適な状態で管理、お届けできます。
・基本的な事務所機能のほかに、組合員、生産者、職員が気軽に集える「協同の場」となる設計にします。
・組合員と生産者が一緒に商品開発や利用方法の研究ができる場にしたいと思います。
現段階では素案です。ぜひ組合員皆さんのアイディアをお寄せ下さい。
5月1回 配送設備についての提案 2014年4月21日発行(666kb)
コンテンツ終わり